B VIZIJA
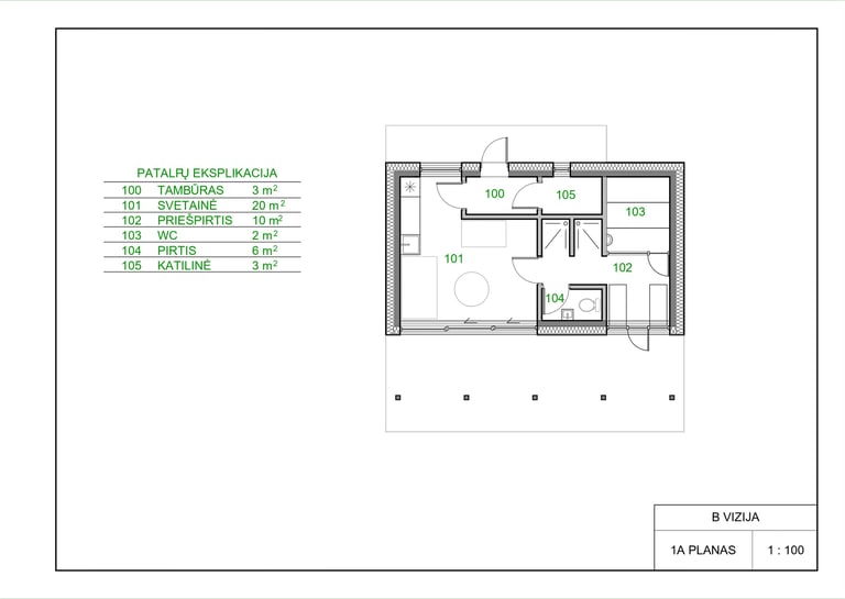
Šis dizainas parūpina 44 kvadratinių metrų garinės pirties pastatą pripildytą natūralia šviesa, porą dušų įkaitusio prakaito nuliejimui bei vietą susėsti 4-5 žmonių šeimai prie lango, kuris orientuotas į sklypo vandens telkinį. Einantiems pirtintis yra skirtas prieškambaris su pora suoliukų ir atskiru išėjimu į kiemą.

PIRKINĮ SUDARO ŠIE BRĖŽINIAI:
Pastato planas;
Pastato fasadai;
Architektūrinis pjūvis
(tik su charakteringais aukščiais);
Stogo planas.
PIRKINĮ GAUSITE IŠKART:
Įvykdžius apmokėjimą brėžinukus gausite per nuorodą, kurią gausite į el. pašto adresą.
Paspaudus nuorodą per 48 val. galėsite parsisiųsti įsigytus failus ir eiti prie kitų etapų.






KĄ DARYTI PRIEŠ ĮSIGYJANT VIZIJĄ?
KREIPTIS Į ARCHITEKTĄ:
AR YRA GALIMYBĖ JŪSŲ NORIMAME SKLYPE STATYTI PIRTIES STATINĮ?
KURIOJE SKLYPO VIETOJE GALIMA STATYTI?
PASIRINKTI IR ĮSIGYTI NORIMĄ VIZIJĄ

